Ref: 2809   

SE VENDE: APARTAMENTO DE LUJO DE OBRA NUEVA TERMINADO EN ABRIL 2025 EN BENALMADENA
Apartamento en venta en Benalmádena, 580.000 €

Garaje Promoción nueva Sin muebles

Descripción



SE VENDEN 4 APARTAMENTO DE LUJO DE OBRA NUEVA TERMINADO EN ABRIL 2025 EN BENALMADENA
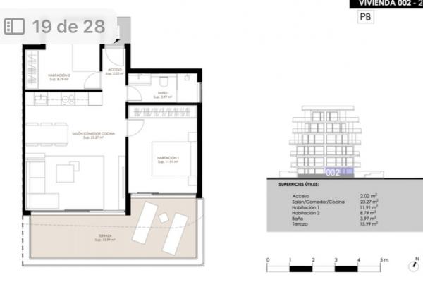
TIENE 101M2 CONSTRUIDOS , ORIENTACION SUR , PLAZA DE GARAJE , AIRE ACONDICIONADO FRIO /CALOR POR CONDUCTOS
LA VIVIENDA CONSTA DE 2 DORMITORIOS , 2 BAÑOS , SALON COMEDOR CON COCINA AMERICANA COMPLETAMENTE AMUEBLADA Y AMPLIA TERRAZA .
Moderno edificio residencial ya finalizado compuesto por solo 10 viviendas. Este conjunto intimo y muy privado ofrece la máxima tranquilidad y confort a sus residentes, sin renunciar a una ubicación privilegiada, a solo 350 metros de la playa y a escasos pasos del famoso Parque de la Paloma.
El edificio, de arquitectura contemporánea, se integra perfectamente en el entorno y ha sido diseñado pensando en la calidad de vida: líneas elegantes, grandes ventanales, excelente orientación y acabados de primera calidad.
Cada vivienda ha sido proyectada con especial atención a la luz natural, las vistas y el confort interior. La promoción destaca también por su piscina comunitaria, ideal para disfrutar del clima mediterráneo durante todo el año.
Quedan 1 apartamento
3ª planta 2 dormitorios 101,63M2 580,000€


Características

Generales
  • 3ª planta
  • 1 Salón
  • 2 Dormitorios
  • 2 Baños
  • 2 Armarios empotrados
  • 1 Terraza
  • Garaje independiente

Superficies
  • Constr.: 101 m2

Estado
  • Año de construcción: 2025
  • A estrenar

Equipamiento
  • Piscina
  • Jardines
  • Cocina americana
  • Electrodomésticos
  • Agua caliente individual
  • Aire acondicionado central
  • Video-portero
  • Lavadora
  • Lavavajillas

Servicios
  • Agua
  • Luz

Calidades
  • Solería de parquet
  • Acristalamiento doble
  • Carpintería de aluminio
  • Puerta reforzada
  • Cerradura de seguridad


Precio

580.000 €

  • m2 constr.: 5.743 €

Certificado energético

CALIFICACIÓN ENERGÉTICA

Consumo energía
kW h / m2 año
Emisiones CO2
kg CO2 / m2 año
A
B 999
C
D
E
F
G 999

Situación y Entorno

Benalmádena (Málaga)

Situación
  • Urbanización
  • Exterior
  • A 500 metros de la playa
  • Orientación sur
  • Vistas al mar
Cerca de
  • Escuelas
  • Hospitales
  • Comercios
  • Restaurantes
  • Ocio
  • Zonas deportivas
  • Campos de golf
  • Zonas verdes
Comunicaciones
  • Bus
   Llamar

Uso de cookies

Utilizamos cookies propias y de terceros para mejorar la experiencia en nuestra web y con fines analíticos. Algunas son necesarias para el correcto funcionamiento de la web, otras podrás configurarlas o rechazarlas. Puedes ver más información en la página de Política de cookies